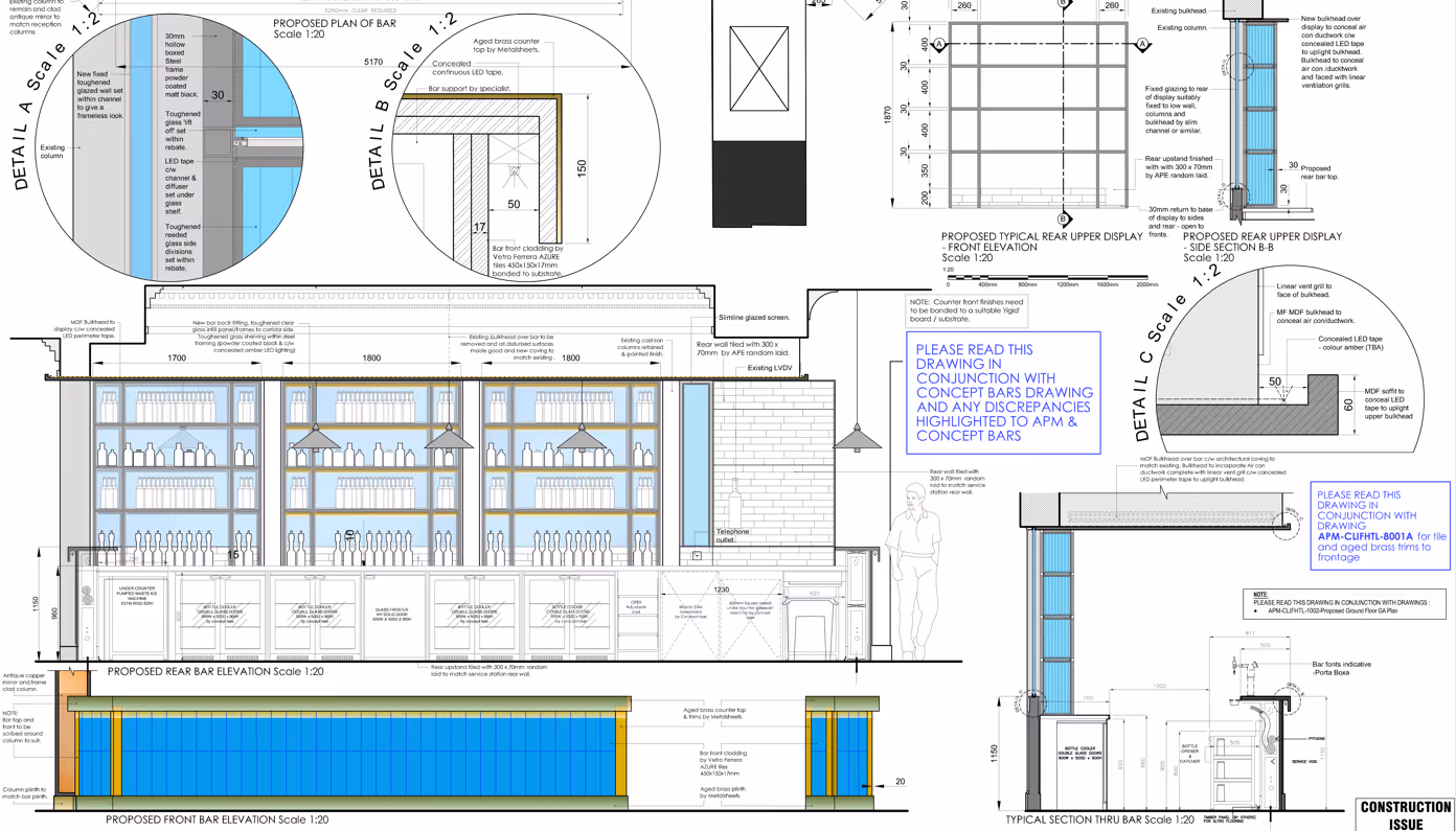
APM Design use a combination of AutoCAD and 3D visual software to produce accurate planning, construction and as built drawings. Detailed drawings and visuals are essential in ensuring that design visions are correctly interpreted and meet our Clients expectations.
The level of Detailed Drawings produced by APM will vary depending on the project and may include the following:
